SPECIFICATION - Analogue
1. PSTN analogue telephone 2. DTMF dialing
3. MTBF:100000hours 4. MTTR: 2 hours
5. Connection: RJ11 screw terminal pair cable 6. Sound level of ringing:over 70dB(A).
7. Call transmission index:(5KM)SLR<12,RLR<-1,stmr>10, output impedance is 600 Ohm.maximum distance: 7KM
8. Applicable for various types of SPC exchange PABX and dispatching exchange system with feeding voltage of 33-60V.
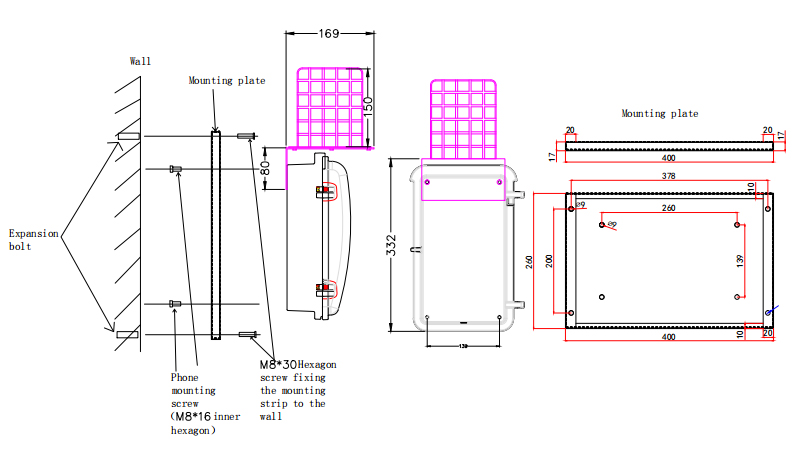
9. Connection: RJ11 screw terminal pair cable (or RJ11 Socket of plug upon request),with stainless steel cable protected
10. Super strong function is available for dialing 12 groups of numbers stored in the memory,(maximum length of each number is 16 digits)
11. Standard frequency:low frequency group:697. 770. 852. 941Hz,high frequency group:1209. 1336. 1477Hz, frequency deviation:-1.5% ~ +1.5%
12. Ambient temperature:-30 ~ +60 degree. Relative humidity:10%~95% Atmospheric pressure: 86~106Kpa Circumstance noise:less than 60dB(A)
SPECIFICATION - VoIP
1. VoIP SIP2.0 telephone 2. DTMF dialing
3. MTBF100000hours 4. MTTR: 2 hours
5. Auxiliary Contacts:1 Aux Output, dry contact 6. Rated load:0.3 A at 125 VAC; 1 A at 30 VDC
7. Contact Ratings. Load: Resistive load 8. Echo cancellation code:G.167/G.168
9. Rated carry current:1A 10. Max.switching current:1A
11. Max.switching voltage:125 VAC,60VDC 12. Audio Codes:G.711, G.722, G.729
13. IP Protocols:IPv4, TCP, UDP, TFTP, RTP, RTCP, DHCP, SIP
14. Free dial (maximum length of each number is 16 digits)
15. Communication: Full duplex 2-way hands-free communication
16. Call Control Signaling:VOIP SIP Info(DTMF), RFC 2833(DTMF)
17. Network:10/100 BaseTX Ethernet, RJ45 connectors, Cat5e or better
18. Power:Power over Ethernet, IEEE802.3af, Class 0 Local power, 12VDc,Idle 2W, Max 10W
19. Programming:Non-volatile flash memory programming and configuration through Web GUI
20. Management and Operation:DHCP and static IP, remote automatic software upgrade, centralized monitoring, status LED
21. LAN Protocols:Power over Ethernet(PoE,802.3af), WLAN(IEEE 802.3af), Network Access Control(IEEE 802.1x),STP(IEEE 802.1d), RSTP(IEEE 802.1d-2004)
